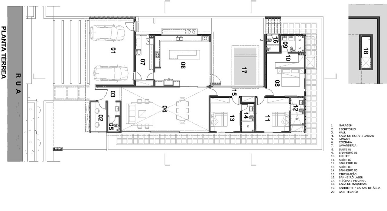
Localizada em Bauru, no interior de São Paulo, a casa TGS foi projetada com o objetivo de integrar os ambientes e o convívio entre os moradores. Os espaços se encontram organizados de acordo com o programa de necessidades. A sala de estar e jantar, assim como a cozinha, são os elementos que animam este amplo espaço aberto. A cozinha, como área social, é integrada à sala de modo a promover a convivência dos usuários em um único espaço formado por áreas de diferentes dinâmicas.
Leia Mais...
Casa TGS
O projeto foi pensado também com a possibilidade de separar esses ambientes com o fechamento de painéis em madeira. Um dos principais destaques é o jardim vertical atrás da piscina, que dá cor a casa e torna o ambiente menos árido. No que se refere à materialidade, o aspecto tátil do concreto foi alcançado com a utilização de fôrmas de ripas irregulares de madeira. O piso de porcelanato e as paredes brancas permitem que os elementos em madeira, com seu tom natural, se destaquem, e a sobriedade de cores e o uso de poucos materiais resultam em um design refinado, característica do projeto em geral. Uma circulação muito bem iluminada dá acesso aos dormitórios, ambientes privativos em relação à área social da residência. Grandes janelas e portas localizadas em paredes opostas e adjacentes, além de permitirem abundante iluminação natural, também garantem ventilação natural cruzada, possibilitando a circulação do ar com maior amplitude pela casa.
Arquitetura e Design
Arquitetura e Design
Arquitetura e Design
Arquitetura e Design
Arquitetura e Design
Arquitetura e Design
Arquitetura e Design
Arquitetura e Design
Arquitetura e Design
Arquitetura e Design
Arquitetura e Design
Arquitetura e Design
Arquitetura e Design
Arquitetura e Design
Arquitetura e Design
Arquitetura e Design
Arquitetura e Design
Arquitetura e Design
Arquitetura e Design
Arquitetura e Design
Arquitetura e Design
Arquitetura e Design
Arquitetura e Design
Arquitetura e Design
Arquitetura e Design
Arquitetura e Design
Arquitetura e Design
Arquitetura e Design
Arquitetura e Design
Arquitetura e Design
Arquitetura e Design